Funderar du på att bygga en redskapsbod, fristående eller som tillbyggnad? I denna artikel får du värdefulla tips om vad du behöver tänka på om du funderar på att bygga en redskapsbod.
Det lär höra till undantagen att ett småhus som byggts under de senaste decennierna saknar garage eller carport. Däremot är det mycket vanligt att redskapsboden lyser med sin frånvaro.
Möjligen är förrådet tänkt som ett utrymme även för trädgårdsredskapen, men på grund av allt för få kvadratmetrar fungerar det sällan så. Detta är en brist, som på sikt tyvärr får ekonomiska konsekvenser om man inte gör något åt den.
Så länge vi hade vedeldade köksspisar, kaminer och kakelugnar var det självklart att det också fanns en vedbod i anslutning till bostaden. Ofta var detta utrymme så väl tilltaget att vedboden även fungerade som redskapsbod och lite av hemmaverkstad.
Med eluppvärmning och oljeeldning försvann och därmed också det nödvändiga utrymmet för skrymmande redskap. När man som nybliven villa- eller radhusägare flyttar in i huset är dessa små utrymmen oftast tillräckliga. Garaget är stort nog för att, förutom bilen, ge plats åt såväl spaden som krattan och gräsklipparen.
Bygg redskapsboden så att den uppfyller dina behov
Men redan när man måste göra plats för sommar- eller vinterdäcken börjar bekymren. Visserligen kan man ibland satta upp hyllor eller upphängningsanordningar högt längs väggarna och till och med ordna med däckhyllor under taket, men sådana lösningar håller sällan i längden. Dessutom kräver arrangemanget tunga lyft och mycket klättrande.
Risken finns dessutom alltid att något av det vi hänger upp faller ner eller att vi vid in- eller utfart kör emot saker som står längs väggarna. Till synes bagateller tills räkningen från karosseriverkstaden och/ eller lackeringen kommer.
Ingen ska heller inbilla sig att det blir färre med åren. Tvärtom! Snart nog får gräsklipparen och cykeln sällskap av till exempel en liten snöslunga och sa småningom också av en jordfräs…
Nej, idealet är att snarast möjligt ordna med en någorlunda rymlig redskapsbod. Den kostar en del, men har du ingenstans där du torrt kan förvara och regelbundet se över redskapen drar du i längden på dig ännu större kostnader i reparationer och nyanskaffningar.
Att förvara trädgårdsredskap tillsammans med trädgårdsmöbler är ingen bra lösning. Jord- och oljefläckar på sittdynor och vilstolsmadrasser kostar onödiga pengar.
Bygga redskapsbod fristående eller som tillbyggnad
I de allra flesta fall är det naturligt att bygga till, det vill säga förlänga det redan befintliga garaget eller förrådet för att få en lämplig redskapsbod. Tänk bara på att skilja utrymmena från varandra med en vägg, även om detta innebär en extra kostnad.
Bygg dock inte till för smått. En normal garagebredd är cirka 4 meter. Förlänger du byggnaden med 2 meter har du fått en redskapsbod med cirka 8 kvadratmeters golvyta. Den räcker säkert för förvaring av den utrustning du har, och lite till.
Men tänk dig ändå för. Vill du också få plats med familjens cyklar och kanske en arbetsbänk, bör du lägga till ytterligare 1 meters tillbyggnad for att komma upp i cirka 12 kvadratmeter. Det är billigare att göra det när du ändå är i gång än att ge dig på ytterligare en förlängning vid ett senare tillfälle.
Det kan givetvis finnas många skäl till att en garagetillbyggnad inte är den bästa lösningen. Då kanske det passar bättre att bygga en fristående redskapsbod.
En redskapsbod bygger du tämligen enkelt i lösvirke på plintar. Nöjer du dig med någon av standardlösningarna 6 respektive 10 eller 15 kvadratmeters rumsyta kan du till och med få en enkel byggbeskrivning i handen när du köper virket.
Har du dessutom möjlighet att placera redskapsboden minst 4,5 meter från tomtgränsen, och i övrigt uppfyller kommunens byggbestämmelser, har du stora möjligheter att bygga den utan byggnadslov.
Självfallet måste du räkna med att varje typ av redskapsbod kostar en del pengar utöver ditt eget arbete, men de pengarna har du snart fått igen om du har ett torrt, väderskyddat utrymme for cyklar, gräsklippare, snöslungor och liknande.

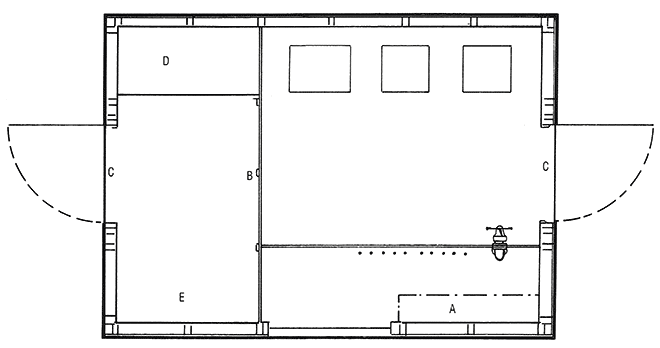
Planen visar hur du på 15 kvadratmeter kan få en fristående redskapsbod med arbetsbänk (A). Med en mellanvägg (B) och två dörrar (C) kan du dessutom ordna ett litet förråd för brasveden (D) och ett utrymme för familjens cyklar (E).
Värt att veta om redskapsbodar
För en fristående redskapsbod eller friggebod, som inte har större byggnadsyta än 15 kvadratmeter, inte högre nockhöjd än 3 meter och kan placeras max 4,5 meter från tomtgränsen, behövs i regel inte byggnadslov. Du kan läsa mer om regler för friggebodar på Boverkets hemsida.
Innan du sätter igång att bygga ska du ta kontakt med kommunens byggnadsnämnd. Särskilda bestämmelser kan gälla just inom ditt område. Innan du bygger är du också skyldig att upplysa eventuella grannar om dina planer. Har du också planer på att bygga ett Attefallshus kan du läsa mer om regler för Attefallshus på Boverkets hemsida.
Relaterade artiklar
Reda bland redskapen
Det är nog inte utan att många småhusägare önskar att inte bara…
Lådor – väskor och bälten för verktyg
Bor man i en lägenhet behöver man sällan en mer omfattande…
Verktygsskaft
De allra flesta handverktyg har skaft av så hållbart material att de håller…
Ett fungerande verktygsförråd
Hur stor eller liten och hur enkel eller specialinriktad verktygsuppsättning…
Brynen för att slipa och skärpa
Egentligen är det självklart att alla eggverktyg ska vara vassa. Ar de inte…